Skip to main content

Investieren in Geschichte und Zukunft

objekt-meiningen

Einzigartiges Wohnprojekt in Meiningen

Willkommen bei Euphoria Immobilien, Ihrem Experten für exklusive Wohn- und Investitionsobjekte. Heute präsentieren wir Ihnen ein außergewöhnliches Angebot: ein Einzeldenkmal mit modernem Wohnkonzept in der besten Lage von Meiningen.

Eine Immobilie mit Charakter und Potenzial

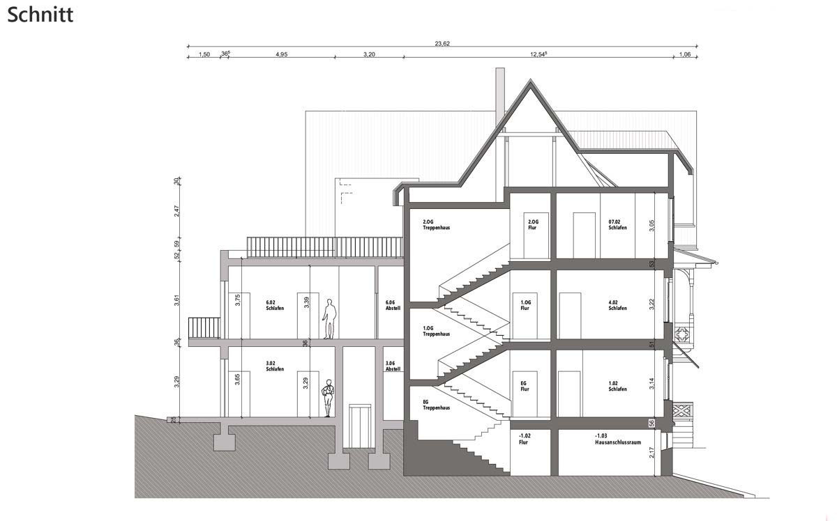
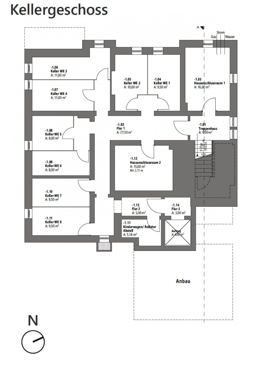
Das charmante, denkmalgeschützte Wohnhaus in der Schönen Aussicht 1a vereint historische Eleganz mit modernem Wohnkomfort. Dank einer durchdachten Projektplanung wird es zu einer einzigartigen Wohngelegenheit für Eigennutzer und Investoren gleichermaßen.

Die Highlights auf einen Blick:

Provisionsfreier Erwerb direkt vom Eigentümer
Sonderabschreibung nach § 7i EStG – ideal für Investoren
Barrierearme Erschließung mit Aufzug für maximalen Komfort
Zeitgemäße Grundrisse und großzügige Wohnflächen
Mietergärten und Gemeinschaftsflächen für ein urbanes, grünes Wohnen
8 Stellplätze auf dem Grundstück – eine Seltenheit in der Innenstadt

Beste Lage für höchste Lebensqualität

Die Immobilie befindet sich im Herzen von Meiningen, nur wenige Gehminuten von der historischen Altstadt entfernt. Einkaufsmöglichkeiten, Restaurants, kulturelle Highlights und der öffentliche Nahverkehr sind in unmittelbarer Nähe:

📍 Marktplatz: 450 m
🚆 Hauptbahnhof: 1.000 m
🚌 ÖPNV-Haltestelle: 75 m

Attraktive Wohneinheiten für jede Lebenssituation

Das Projekt umfasst acht exklusive Wohneinheiten, die ideal für Singles, Paare und kleine Familien sind:

🏡 Wohnungsgrößen von 59 m² bis 109 m²
🛏️ 2- bis 3-Zimmer-Apartments
🌳 Garten- oder Balkonoptionen

Warum jetzt investieren?

🏆 Denkmalimmobilien bieten nicht nur einzigartigen Wohnkomfort, sondern auch steuerliche Vorteile. Dank der Sonderabschreibung nach § 7i EStG profitieren Kapitalanleger von attraktiven Steuervorteilen.

📈 Steigender Wohnraumbedarf in Meiningen macht dieses Projekt zu einer langfristig wertstabilen Investition.

🌟 Euphoria Immobilien begleitet Sie bei jedem Schritt – von der ersten Beratung bis zur finalen Kaufabwicklung.

Jetzt informieren!

Nutzen Sie die Chance auf eine außergewöhnliche Immobilie mit Zukunft. Kontaktieren Sie uns noch heute und sichern Sie sich Ihr neues Zuhause oder Ihre nächste Investition!

📞 René Kühne +49 174 3267326
📧 This email address is being protected from spambots. You need JavaScript enabled to view it.
🌍 www.euphoria-immobilien.de 

By accepting you will be accessing a service provided by a third-party external to https://www.euphoria-immobilien.de/

Abonnieren Sie unseren Newsletter

© 2021 Euphoria GmbH
All rights reserved.